70 Cobourg Street Ottawa, Ontario K1N 8G8
$900,000
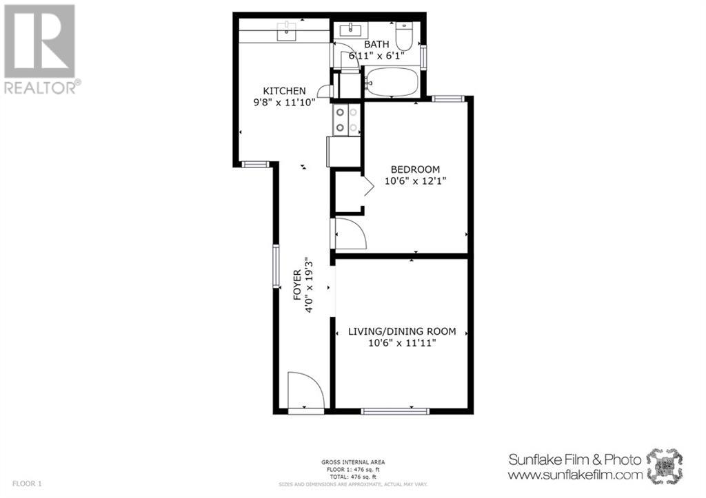
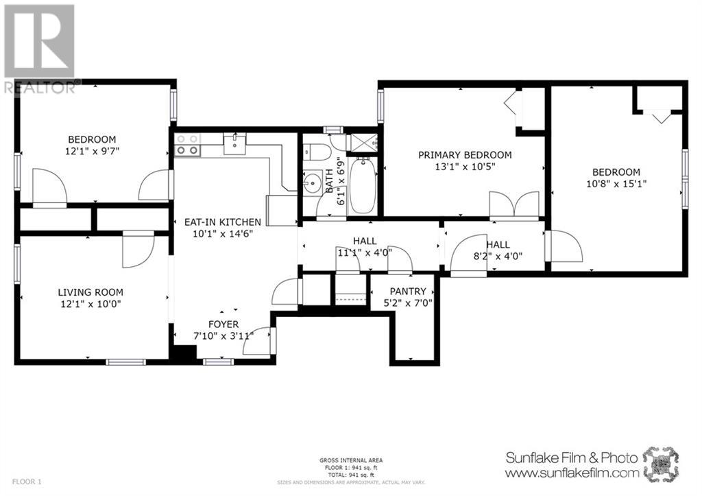
Welcome to 66, 68, and 70 Cobourg Street in the center of the action Lower Town! This triplex features 3 separate units and shared laundry in the basement. 66 Cobourg is a 1 bed, 1 bath (rented at $1,145/month), 68 Cobourg is a 3 bed, 1 bath (rented for $1,545/month), and 70 Cobourg is a 1 bed 1 bath (rented at $707.46/month). The largest unit was recently renovated and features a private entrance, pantry, storage room, and a den which could be used as a home office or possible fourth bedroom. This property is right across from MacDonald Gardens Park, and just a short walk to the hustle and bustle of Rideau St and the Byward Market. From here, youre just minutes from Rideau Centre and uOttawa campus. This property would be an asset to any investors portfolio. Book your showing today! (id:25350)
Property Details
| MLS® Number | 1239964 |
| Property Type | Multi-family |
| Neigbourhood | Lower Town |
| Parking Space Total | 1 |
Building
| Basement Development | Unfinished |
| Basement Features | Low |
| Basement Type | Unknown (unfinished) |
| Construction Style Attachment | Attached |
| Cooling Type | None |
| Exterior Finish | Stucco |
| Flooring Type | Hardwood |
| Heating Fuel | Electric |
| Heating Type | Baseboard Heaters |
| Stories Total | 2 |
| Type | Triplex |
| Utility Water | Municipal Water |
Parking
| Surfaced |
Land
| Acreage | No |
| Current Use | Development Residential |
| Sewer | Municipal Sewage System |
| Size Depth | 66 Ft ,2 In |
| Size Frontage | 33 Ft |
| Size Irregular | 33.01 Ft X 66.13 Ft |
| Size Total Text | 33.01 Ft X 66.13 Ft |
| Zoning Description | Residential |
https://www.realtor.ca/real-estate/23152227/70-cobourg-street-ottawa-lower-town
Interested?
Contact us for more information
Kevin Cosgrove
Salesperson
343 Preston Street, 11th Floor
Ottawa, Ontario K1S 1N4
(866) 530-7737
(647) 849-3180
www.exprealty.ca






























































